?案例类别:定制影院+KTV
?位置及周边概括性描述:英嘉尼总部位于深圳市龙岗区下李朗社区联李东路8号赛为大厦9楼,毗邻兆驰产业园和海大科技园。
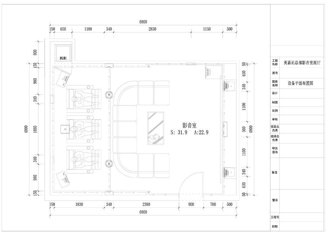
?空间信息:面积约为32.6平方米。
?项目背景:为更好地推进英嘉尼品牌发展战略目标的实现,提升品牌形象,增强用户体验,满足客户多样化需求,英嘉尼智能家庭影院总部对影音室展厅进行全面升级。

视频设备
? 投影机:EPSON(爱普生)TW-8400
? 幕布:美辰170寸透声画框银幕
? 点歌机:视易3T点歌机+21.5寸电容屏
? 播放机:亿格瑞高清蓝光播放机A15
音频设备
影音室部分
? 主音箱:ENJOUN(英嘉尼)A6 × 2
? 中置音箱:ENJOUN(英嘉尼)A6 × 1
? 侧环绕声道扬声器:ENJOUN(英嘉尼)A5 × 2
? 后环绕声道扬声器:ENJOUN(英嘉尼)A5 × 2
? 天空声道扬声器:ENJOUN(英嘉尼)IC-T6 × 4
? 超低扬声器:ENJOUN(英嘉尼)A-BASS12 × 2
? 影院功放:DENON(天龙)AVR-X4500H × 1
KTV部分
? KTV主扩音箱:ENJOUN(英嘉尼)K312 × 2
? KTV辅助音箱:ENJOUN(英嘉尼)K210 × 2
? KTV超低音扬声器:ENJOUN(英嘉尼)K118S × 1
? KTV功放:ENJOUN(英嘉尼)TD-600 × 1
ENJOUN(英嘉尼)TD-800 × 1
ENJOUN(英嘉尼)TD-13 × 1
? 效果器:ENJOUN(英嘉尼)TH-200 × 1
? U段无线话筒:ENJOUN(英嘉尼)EK-102 × 1
? 电源时序器:ENJOUN(英嘉尼)VS-801 × 1

英嘉尼总部影音室展厅长度6.8米,宽度4.8米,面积约为32.6平方米,属于标准的长方形影音室空间。

声学设计方面,影音室采用隐藏式声学处理,由悬浮结构层打造出房中房结构,四周铺贴了隔音棉和隔音毡,经过声学软件测试确定好音箱的点位。影院音箱则是采用支持嵌入安装的A6、A5、IC-T6,放置音箱的孔位留一些空间和音控作为音响的音震。经过吸音和扩散处理的影音室,出来的声音更加清澈透亮,平行墙面间的震荡回声得到有效克制。

墙面采用横向错层造型,内嵌灯带,光源通过错层造型散发出来,深浅的错落,有着空间延伸的效果,使人感觉开阔而放松。
顶面造型考虑到房间高度有限,同时要隐藏空调主机预留风口,整个顶面采用宽大边吊和半铺星空顶的设计,尽量保证房间完成高度。高容重吸声处理改善顶面与地面间的多余反射波。

颜色搭配方面,灰色系墙面与多彩灯饰的碰撞,在观影和K歌的不同模式下,呈现出截然不同的视觉效果。前墙的黑色饰面与画框幕布边框颜色相同,将白色幕布反衬出来,在观影时可有效避免对视觉效果的影响。坐在沙发,望着头上的星空顶闪烁着璀璨的光芒,仿佛回到孩童时期仰望星空畅谈理想的美好时光。
英嘉尼总部影音室展厅面积约为32.6平方米,经过公司专业影音设计师精心的规划和设计,由原先的配置升级为7.2.4全景声影院+4.1KTV,属于定制影院+KTV。升级后的影音室不仅拥有更具科技感的布局和更加强大的功能,还可以为客户带来更加震撼的视听体验。

在这里,我们拥抱科技,尽情享受身临其境般的观影和K歌体验,感受科技与艺术的完美融合;在这里,我们告别繁琐,只需通过智能面板,就能一键切换观影和K歌模式,男女老少都能轻松使用。无论是聚会、庆祝活动还是休闲娱乐,这个全新的空间都将为我们提供更好的体验和更多的可能性。






网友评论仅供其表达个人看法,并不表明阿拉丁照明网同意其观点。
0 条评论
登录 才能发表评论!